DUAL KEY BUILD Lot, 14 Warnervale Rise Estate, Warnervale

Contact selling agent

5 3 3

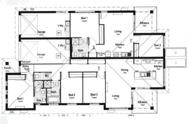
Dual Living 221 - Plantation Facade

DUAL KEY DESIGN

 

Full Turnkey completely finished build and ready to move in, prepared for the astute, non-emotional investor who essentially wants a set and forget investment offering real Positive Cash flow. Designed to generate optimum income, our Dual Key Homes have been crafted from years of investor, agent, and property manager feedback.

One Property. Two Incomes. Capitalise without the subdivisional costs of two separate homes.

Two-part contract: You only pay Stamp Duty on the land (saving thousands of dollars)

Pay the mortgage off much faster and/or reduce mortgage payments with the extra income from the side unit.

Cater for the extended family, with the security and privacy of their own private accommodation.

 EST Yield - 4.50% - 4.95%

EST.Rental P/W $1000 - $1100

Details

Address DUAL KEY BUILD Lot, 14 Warnervale Rise Estate, Warnervale
Price Contact selling agent
Property Type Residential
Property ID 514
Category House And Land Package

Share

Michael McCallum photo

Michael McCallum

0428 860 511