Lot, 0144 Minnisota Estate, Hamlyn Terrace

Contact selling agent

3 2 2

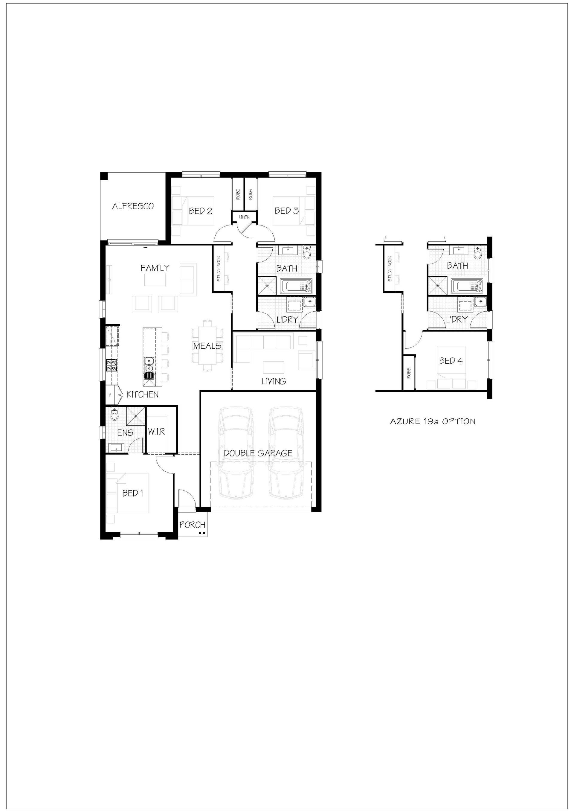
Copper 19

The Copper 19 finds a happy medium between family features and compact design.

An open plan living, dining and kitchen area is perfect for getting the family together for meals.

3 spacious bedrooms and two luxury bathrooms, or change the formal living into another 4th bedroom, make the Copper 19 the perfect family home.

From our builder, Confidence Guarantee, “We will build you a quality home on time, every time or WE WILL PAY YOU $5000 A WEEK!

Land Registration April 2023.

 

Details

Address Lot, 0144 Minnisota Estate, Hamlyn Terrace
Price Contact selling agent
Property Type Residential
Property ID 469
Category House And Land Package

Share

Michael McCallum photo

Michael McCallum

0428 860 511